RD Ďáblice A+B
Projekty

RD Ďáblice A+B

Novostavba rodinných domů 4+kk s garáží o velikosti 152 m2 v žádané lokalitě Prahy 8 – Ďáblice. Jedná se o stavbu z kvalitních cihel Porotherm a vybavenou nadstandardními prvky: izolační trojskla, velkoformátový HS portál, tepelné čerpadlo, fotovoltaická elektrárna a podlahové vytápění v celém domě. Díky těmto technologiím se jedná o energeticky úsporné bydlení s nízkými provozními náklady.

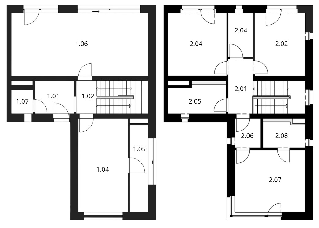
Dispozice domů A+B:

V 1 NP: U vstupu je prostorné zádveří 5,6 m2, dále chodba, technická místnost 6,7 m2, obývací pokoj s kuchyňským koutem 36,5 m2, samostatné wc a garáž 19,1 m2.

V 2 NP: Na chodbě se nachází samostatná, skrytá šatna, dva pokoje ( 13,5 m2 a 15,5 m2 ) a koupelna. Dále pak samostatná ložnice o velikosti 18,88 m2 s vlastní šatnou a koupelnou se sprchovým koutem.

Lokalita:

Domy se nacházejí v klidné ulici Brigádnická, Praha 8 – Ďáblice. Tato vyhledávaná rezidenční oblast nabízí kompletní občanskou vybavenost – školy, školky, obchody i restaurace. Výborné je také dopravní spojení, metro C (Ládví, Kobylisy) je dostupné během několika minut. V okolí se nachází Ďáblický háj a cyklostezky, které poskytují prostor pro relaxaci i sportovní vyžití.

Fáze výstavby

Fáze výstavby

Stavební povolení na celý projekt
Cena projektu
18.900.000 Kč
Ulice Brigádnická 562/17
Počet volných domů 3
Užitná plocha 152 m2
Parcela 200 m2
Parkování 1x garážové stání, 1x na pozemku

Zahájení výstavby

Jaro 2026

Kolaudace

Léto 2027

Půdorys

Půdorys
Ikona stáhnout Stáhnout půdorys

Kontakt
na prodejce